What Is Included in a Permit Plan Set? (DMV Guide)
4/28/20263 min read


If you’re planning a construction project in the DMV area, one of the first things you’ll need is a permit plan set.
This is the set of drawings you submit to the county for approval before anything gets built.
A lot of people assume a simple floor plan is enough. It’s not.
A complete permit plan set includes multiple drawings that clearly show what’s being built, how it’s built, and how it meets local code requirements.
If anything is missing or unclear, the county will send it back with comments, and that’s where delays start.
_____________________________________________________________________________________________________
What Is a Permit Plan Set?
A permit plan set is a full collection of architectural and sometimes structural drawings prepared specifically for permit approval.
These drawings are reviewed by the county to make sure your project meets:
zoning requirements
building codes
safety standards
They are not just for construction. They are built for approval first, construction second.
If you want a full overview of how permit-ready plans fit into the bigger process, you can also read our guide on permit-ready architectural plans.
_____________________________________________________________________________________________________
What’s Included in a Typical Permit Plan Set?
The exact requirements vary by county and project type, but most permit plan sets in Northern Virginia include the following:
1. Site Plan
This shows:
property lines
setbacks
location of the structure on the lot
distances to nearby structures
This is one of the first things reviewers check.
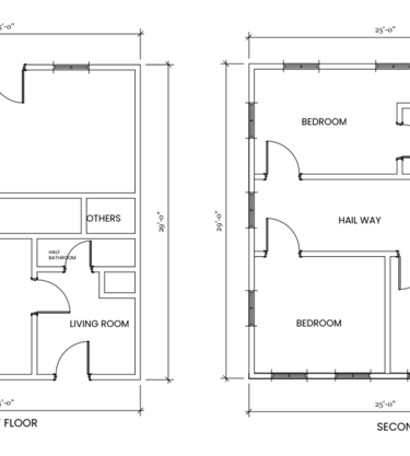
2. Floor Plans
These show the layout of the space, including:
room dimensions
walls and openings
doors and windows
overall layout
Everything needs to be clear and consistent.
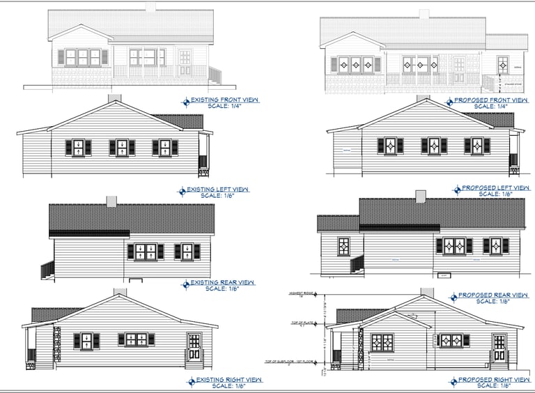
3. Elevation Drawings
These are exterior views of the building.
They show:
height
rooflines
materials
overall appearance
Counties use these to verify height limits and design compliance.
4. Section Drawings
Sections are cut-through views of the building.
They help explain:
how the structure is built
floor-to-floor heights
wall assemblies
These are important for both structural clarity and code compliance.
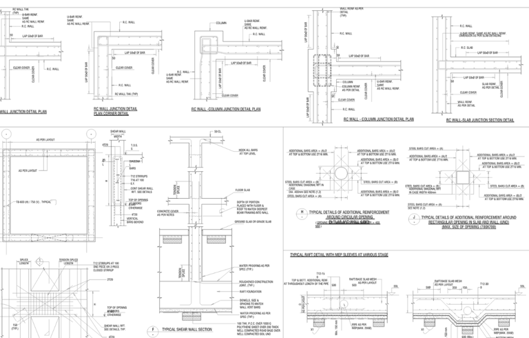
5. Structural Details
Depending on the project, you may need:
framing details
beam sizes
connection details
foundation information
This is especially important for decks, additions, and commercial projects.
6. Code and Zoning Information
A complete set should include notes that address:
building code requirements
zoning rules
construction standards
This helps reviewers understand that the design meets local regulations.
You can also review general permit requirements through resources like the Fairfax County Government building permit page.
_____________________________________________________________________________________________________
Why Incomplete Plan Sets Get Rejected
Most permit delays don’t happen because the project is wrong.
They happen because the plans are incomplete.
Common issues include:
missing drawings
unclear dimensions
conflicting information between sheets
no structural details when required
Each issue leads to review comments, revisions, and resubmissions.
If you want a full breakdown of this, check out why permits get delayed in Northern Virginia.
_____________________________________________________________________________________________________
Residential vs Commercial Plan Sets
The scope changes depending on the project.
Residential
additions
decks
renovations
new homes
These are usually more straightforward but still need full documentation.
Commercial
warehouses
tenant fit-outs
larger builds
These require more coordination and more detailed drawings.
_____________________________________________________________________________________________________
How to Make Sure Your Permit Set Gets Approved Faster
A few things make a big difference:
Include all required drawings from the start
Make sure everything is consistent across sheets
Address zoning and code early
Don’t leave details open to interpretation
Clear, complete plans move through review much faster.
_____________________________________________________________________________________________________
Final Thoughts
A permit plan set isn’t just a formality.
It’s what determines whether your project moves forward or gets stuck in revisions.
In the DMV area, where counties review plans closely, having a complete and clear set of drawings can save a lot of time.
_____________________________________________________________________________________________________
Need Help Putting Together a Permit Plan Set?
If you have a project coming up and need help preparing drawings for permit approval, feel free to reach out through our contact page.
We can take a quick look and let you know what would be required based on your project.










Follow Us
Connect with us through our social media
Contact Us
© 2024. All rights reserved.