Our Projects
Explore our diverse portfolio showcasing architectural and design excellence.


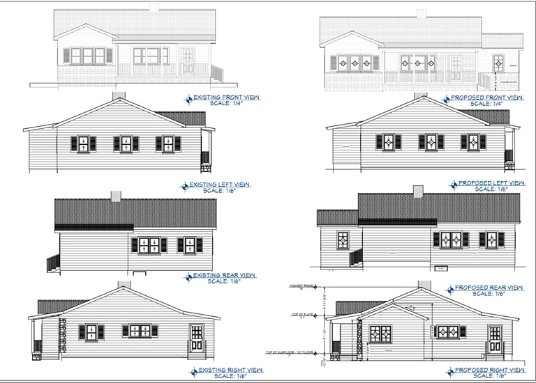
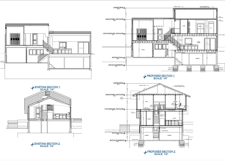
Proposed Addition
A seamless addition blending functionality and aesthetics with the original structure.


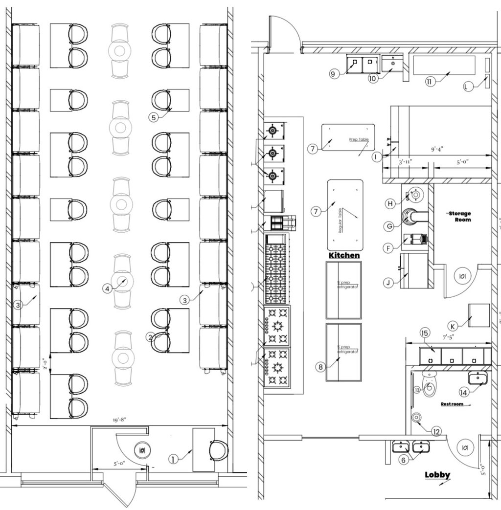
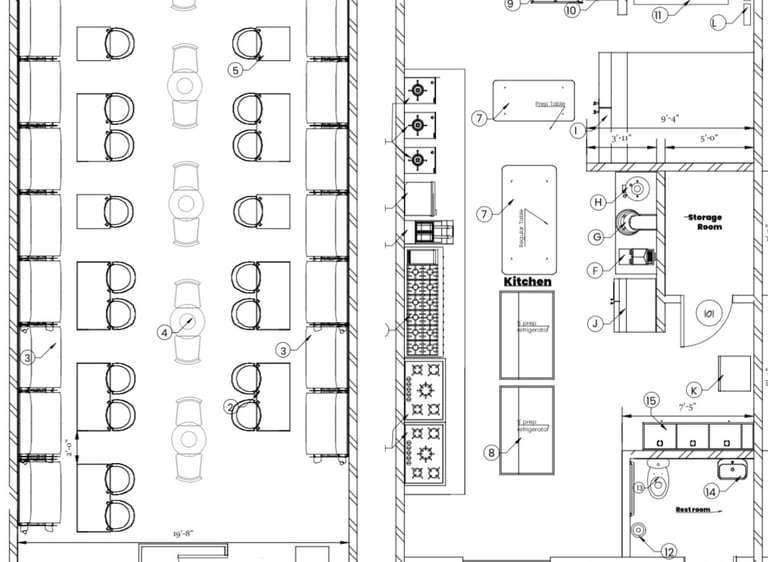
Commercial Space
Efficient full-service restaurant layout with dining, kitchen, and storage areas seamlessly integrated.




Our Expertise
At ASG Design Group, we specialize in delivering county permit-ready plans, including architectural, structural, and MEP (mechanical, electrical, plumbing) designs. We offer realistic 3D renderings and Professional Engineer-stamped drawings to ensure compliance and precision. From custom home designs to commercial projects, we provide comprehensive solutions tailored to your needs.
Portfolio
Showcasing Our Work
Explore our diverse portfolio highlighting successful projects and design excellence.
Custom Design Solutions
We believe every project is unique. Our collaborative process ensures your dream design is tailored perfectly to your vision. From concept to completion, we work closely with you to bring your ideas to life with precision and creativity.
About ASG Design Group
We specialize in delivering innovative architectural solutions for residential and commercial projects
Our streamlined process ensures that designs and permit-ready plans are delivered within 3-4 days, keeping your project on schedule.
Fast Turnaround Time
Follow Us
Connect with us through our social media
Contact Us
© 2024. All rights reserved.