Permit-Ready Architectural Plans in the DMV: What You Actually Need for Approval
4/26/20263 min read


If you’re planning any construction project in the DMV area, one thing is guaranteed.
You’ll need plans that the county can approve.
Not just drawings. Not just ideas.
Permit-ready architectural plans.
This is where a lot of projects slow down. The plans look fine at first, but once they hit the county review, issues start coming up.
Missing details. Code conflicts. Incomplete information.
And that’s when delays begin.
_____________________________________________________________________________________________________
What Are Permit-Ready Architectural Plans?
Permit-ready architectural plans are a full set of drawings prepared specifically for permit approval.
They’re not just for construction. They’re built to meet local building codes, zoning rules, and review requirements from the start.
A complete set usually includes:
Site plan
Floor plans
Elevations
Sections
Structural details (if required)
Code references and notes
These are the drawings that get reviewed by the county before anything gets built.
If anything is unclear or missing, the plans get sent back.
_____________________________________________________________________________________________________
Why Most Permit Applications Get Delayed
In the DMV area, delays usually come down to the same few issues.
1. Missing information
Plans don’t show enough detail for reviewers to approve.
2. Code issues
Things like setbacks, height limits, or structural requirements aren’t addressed properly.
3. Inconsistent drawings
What’s shown on one page doesn’t match another.
4. No clear scope of work
Reviewers can’t tell exactly what’s being built or changed. Each time this happens, you get comments back. Then revisions. Then more waiting.
_____________________________________________________________________________________________________
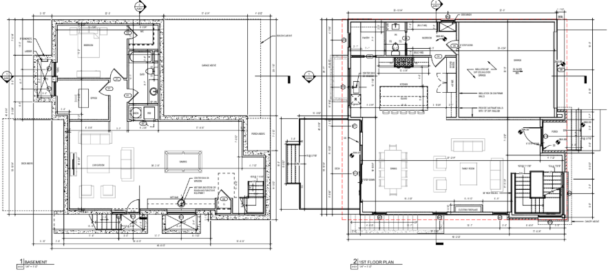
What’s Included in a Complete Permit Plan Set?
A proper permit plan set is more than just a floor plan.
Here’s what’s typically required:
Site Plan
Shows property lines, setbacks, and where the structure sits on the lot.
Floor Plans
Layout of the space with dimensions, walls, doors, and windows.
Elevations
Exterior views showing height, materials, and overall design.
Sections
Cut-through views that explain how the structure is built.
Structural Details
Framing, connections, and load paths when needed.
Code Information
References to building codes and zoning requirements.
_____________________________________________________________________________________________________
The Building Permit Process in the DMV (Simplified)
Most counties in Northern Virginia follow a similar process.
Submit plans for review
County reviews for zoning and building code compliance
Comments are issued (if anything is missing)
Plans are revised and resubmitted
Permit gets approved
Sounds simple, but the quality of your plans determines how fast this moves.
If your drawings are clear and complete, approvals are smoother.
If not, the process drags out.
You can check specific requirements directly with your local county, like the Fairfax County Government permit guidelines.
_____________________________________________________________________________________________________
Residential vs Commercial Permit Drawings
The level of detail changes depending on the project.
Residential
Additions
Decks
Renovations
New homes
These still require code-compliant drawings, but are usually more straightforward.
Commercial
Warehouses
Tenant fit-outs
Larger builds
These require more coordination, more detailed plans, and often multiple disciplines.
_____________________________________________________________________________________________________
Why Contractors and Homeowners Run Into Problems
A common situation:
A client is ready to build. But they don’t have proper plans or the plans they have aren’t ready for permit. That creates a gap.
Contractors either:
have to pause the project
or try to figure out plans mid-process
Both slow things down.
Clear, permit-ready drawings solve that before construction even starts.
_____________________________________________________________________________________________________
How to Avoid Delays from the Start
If you want your project to move smoothly, focus on this early:
Make sure the plans match local zoning rules
Include all required drawings, not just basics
Keep everything consistent across the set
Address code requirements from the beginning
This is where most projects either move forward smoothly or get stuck.
_____________________________________________________________________________________________________
Final Thoughts
Permit-ready architectural plans aren’t just paperwork.
They’re what determine how fast your project moves from idea to construction.
In the DMV area, where regulations are strict and reviews are detailed, the difference between incomplete plans and complete ones can mean weeks or even months.
If you’re starting a project and not sure what’s required, it’s worth getting clarity early before anything is submitted.
_____________________________________________________________________________________________________
Need Help With Permit-Ready Plans?
If you have a project coming up and need drawings prepared for permit approval, feel free to reach out through our contact page.
We can take a quick look and let you know what would be required based on your project and location.
Follow Us
Connect with us through our social media
Contact Us
© 2024. All rights reserved.